您好!欢迎访问 常州市百得干燥工程有限公司 官网!脉冲真空、闭路循环干燥设备的老牌生产厂家及大型工程整体解决方案提供商!
| 联系我们 | 网站首页

常州市百得干燥工程有限公司

—— Changzhou Baide Drying Engineering Co., Ltd ——

联系电话
0519-8918 6676
当前位置:首页 > 新闻中心 > 技术中心

真空耙式干燥机在间二甲苯农药溶剂蒸发的应用

信息来源:本站 | 发布日期: 2018-07-27 20:43:22 | 浏览量:881048

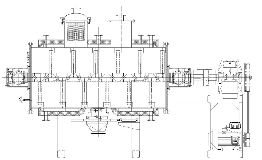
间二甲苯农药真空耙式干燥机  设备概述
       真空耙式干燥机是一种通用型干燥设备,主要应用在制药、食品、轻工、冶金等行业,特别在化学工业中的有机半成品和染料干燥操作中得到广泛应用。适用于干燥热敏性物料,在高温下易氧化的物料或干燥时容易产生粉末的物料(如各种染料),或是干燥时易板结的物料,以及不耐高温和干燥中排出的蒸汽须回收的物料。
       干燥过程:该干燥机为带夹套的卧式圆筒容器,装有低速搅拌轴,轴上装有按一定方向排列的耙齿。搅拌轴有两种形式,一种为不加热的耙齿轴,另一种为可通入热介质的中空耙齿轴。夹套内通入加热介质(热水、热油或蒸汽)。筒体内加入定量的湿物料,按一定时间间隔要求按正转—停止—反转—停止—正转运行,运行周期由用户根据物料的工艺操作条件来设定。筒体中被干燥的物料在耙齿轴有规律的搅拌下,周而复始,直至物料被干燥到符合工艺要求。
       筒体上部安置有真空接口,接入真空系统,使被干燥物料在负压下加热干燥,可保证物料在低温下加热干燥,不致破坏物料的物化性质。物料达到干燥要求后,打开筒体下的放料阀,让物料在耙齿轴的搅拌下向中间移动进行出料。设备的进、出料口人性化设计,进料口为快开式法兰,装料快捷方便。出料口为蜗轮蜗杆封闭式出料装置,出料方便,操作筒便,出料口底部无存料,出料时装袋方便。改进的轴端密封使泄漏降到^小,该密封型式在对密封要求很高的固体甲醇钠等产品的生产工艺中得到良好的验证。


间二甲苯农药真空耙式干燥机   工作原理
       真空耙式干燥机是一种卧式间歇式真空干燥设备,湿物料经热传导蒸发,带有刮板搅拌器不断清除热面上的物料,并在容器内推移形成循环流,湿份蒸发后由真空泵抽出。真空耙式干燥机在化学工业中的有机农药半成品和溶剂干燥操作中用得较多。
       真空耙式干燥机装置用蒸汽夹套间接加热物料,并在高真空下排气,因此特别适应不耐高温、在高温下易于氧化的物料或干燥时容易产生粉末的物料(如各种燃料),以及干燥过程中排除的蒸汽或溶剂必须回收的物料干燥作业。真空耙式干燥机中被干燥物料含水量或溶剂量^高达到90%,而^低的只有15%。被干燥物料有浆状、膏状的、粒状的、粉状的,也可以是纤维状的。这些物料干燥后的含水率一般达到0.1%,甚至0.05%。
       被干燥物料从壳体上方正中间加入,在不断转动的耙齿的搅拌下,物料与壳体壁接触时,表面不断更新,被干燥物料受到蒸汽间接加热,而使物料水分气化,气化的水分由真空泵及时抽走,该机可同时采用夹层与耙齿同时加热方式,传热面积更大,热效率高,使其获得更高的干燥效率。由于操作真空度较高,被干燥物料表面水蒸气压力远大于干燥机壳体内蒸发空间的水蒸气压力,从而有利于被干燥物料内部水分和表面水分的排出,有利于被干燥物料的水分子运动,达到干燥目的。

间二甲苯农药真空耙式干燥机   使用特点
    1) 适应性强,应用较广
    由于耙式真空干燥机利用夹套加热、高真空排气,所以几乎对所有不同性质、不同状态的物料都适应,特别适应易爆、易氧化、膏状物料的干燥。
    2) 产品质量好
    由于干燥过程中,耙齿不断正反转动,被干燥物料搅拌均匀,避免的物料的过热,水分也容易逸出,壳得到低温度的产品。由于产品粒度细,不需粉碎即可包装。
    3) 蒸汽耗量小
    由于真空耙式干燥机多用蒸汽通入夹套,利用潜热加热物料,处理每公斤成品耗用蒸汽量较小,一般为1.3~1.8㎏蒸汽。
    4) 按干燥物料的不同特性及要求,干燥机的密封系统可选择填料密封和机械密封两种,特殊的设计保证了密封性和使用寿命。
    5) 易于操作
    真空耙式干燥机操作方便,定员少,劳动强度低。由于物料外逸损失减小,改善了环境卫生。

间二甲苯农药真空耙式干燥机  相关设计参数:
    1、物料名称:    间二甲苯农药
    2、湿处理量:    400kg/批(每天24小时有6批)
    3、初湿份:      12%(湿基,溶剂:间二甲苯)
    4、终湿份:      ~0.5%(湿基)
    5、热源:        0.2~0.3饱和蒸汽 (按120℃设计)
    6、除尘系统:    布袋除尘器
    7、设备材质:    物料接触处不锈钢304,其余A3制作
    8、安装:        室内
    9、电源:        380V   50HZ
    10、环境:       20℃   760mmHg   φ=80%

间二甲苯农药真空耙式干燥机  物料衡算: 
    1、湿处理量:    W湿=2400kg/20h=120 kg/h
    2、溶剂蒸发量:  W溶=W湿×(ω1-ω2)÷(1-ω2)=14kg/h
    3、干品产量:    W干=120-14=106kg/h 

间二甲苯农药真空耙式干燥机  单套设备主要技术参数
    1、型号:           ZPG-3000
    2、筒体内尺寸:     Φ1200×2660 mm
        外型尺寸:       ~5000×1800×3800 mm(长×宽×高)
        传热面积:       9m2  
    3、设备的总容积:   3000L
        装料系数:       0.3~0.4(液体)     0.4~0.6(粉体)  
        每次处理量:     800kg(干燥时间:~7小时)
    4、主机材质及厚度: 物料接触部分SUS304,其余Q235-B制作
        设备材质: 内胆304/δ12mm     夹套Q235-B/δ10mm
                    保温岩棉/δ80mm    外封Q235-B/δ2mm
    5、设计压力:       罐体内:-0.05MPa~-0.09MPa     夹套:0.4MPa
       夹套使用压力:   0.3MPa
    6、工作介质:       罐体内:物料       夹套内:饱和蒸汽(压力≤0.3 MPa)
    7、夹套内温度:     ≤130℃
    8、设备总重:       ~6.5吨
    9、搅拌转速:       9rpm(^高速度)
    10、设备装机总功率:15kw
    11、搅拌轴:     采用无缝管与耙齿焊接而成(在圆周方向90度错开焊接)于筒体间隙小于10mm
    12、加料方式:      顶部加料

间二甲苯农药真空耙式干燥机  配置一览表(单台)
序号 名称 型号及规格 数量 材质 说明
    1、主机:ZPG-3000
1 主机 Φ1200×2660 1 物料接触304 内胆304/δ12mm夹套Q235-B/δ10mm 保温岩棉/δ80mm外封Q235-B/δ2mm
2 端盖法兰 2 物料接触304 衬环法兰,榫槽面法兰形式
3 端盖板 2 物料接触304 衬环法兰,榫槽面法兰形式
4 人孔、投料口 DN400 1 物料接触304
5 出料阀 DN200 1 物料接触304
6 抽真空罩 配套 1 物料接触304 冲孔板+耐高温覆膜滤袋
7 测温探头 1 物料接触304 套管式,测量物料温度
8 真空表 1 物料接触304
9 管法兰 16公斤级
10 筒体底座 1 Q235 鞍式底座
    2、传动系统:
1 主轴 φ159×16mm 1 304+45 无缝钢管
2 轴密封 填料+密封仓 2 304 填料:四氟
3 轴承 2 哈、瓦、洛
4 轴承座 2 精加工件
5 联轴器 1 45#
6 齿轮减速机 JZQ 1 国茂
7 传动电机 15kw 1 组件 防爆等级:BT-4  皖南电机 变频调速
8 皮带轮 2 ZT200 配防爆皮带
    3、溶剂冷凝回收系统
1 真空冷凝器 1 物料接触304 冷媒:≤0℃冷冻盐水
2 真空缓冲罐 200L 1 物料接触304
3 液环真空泵 2BV6 1 组件
    4、控制系统
1 控制柜 标准控制柜 1 碳钢喷塑 可实现正反转,以及停机按钮控制,隔离放置
2 电器元件 配套 国内^
3 变频器 配套 国内^

需方自配系统所需的设备电线电缆及桥架,自配操作平台。


相关文章
相关产品

Top